1. No results to show.

JL Studio

Top Pro

Contact for price

Responds in about 17 min


Thumbtack Guarantee

If you hire this pro, you’re covered by a money-back guarantee. Learn more

If you hire this pro, you’re covered by a money-back guarantee. Learn more

About
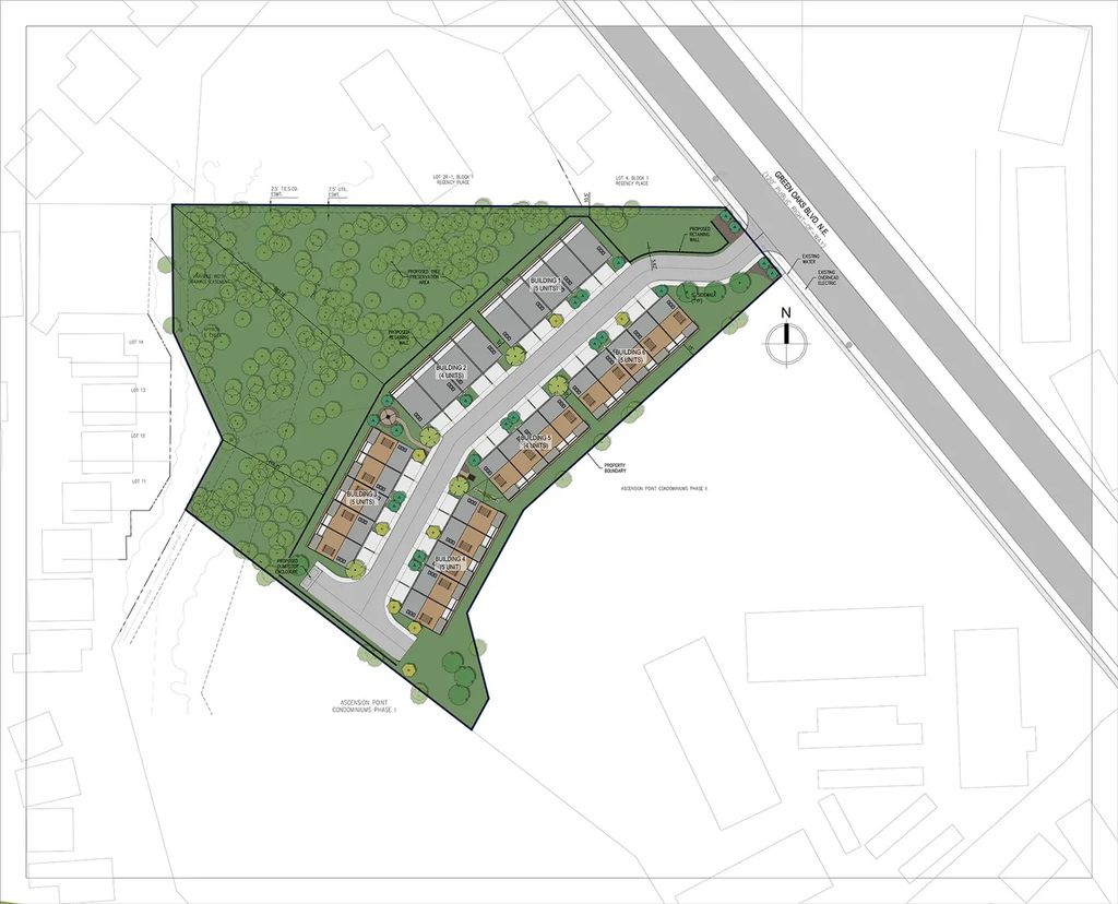
Commercial Design, Permitting & High-End Visualization | Nashville For over a decade, JL Studio has helped developers, builders, and business leaders move projects from concept to completion. We combine technical architectural precision with investor-grade visualization to ensure your project gets funded, permitted, and built. Our Focus in the Nashville Market: We specialize in high-stakes commercial and residential developments where design quality and speed to market are critical. Whether navigating code compliance for a new hospitality build or creating marketing assets for an urban multi-family project, our team acts as a strategic partner. What We Deliver: Commercial Design & Permitting: Full-service architectural design for Office, Retail, Industrial, and Mixed-Use projects. We handle technical details to minimize city comments and streamline the approval process. Capital-Raising Visualization: We produce photorealistic 3D renderings, Virtual Tours, and Cinematic Animations designed specifically to secure investor funding and pre-lease properties. Construction Logistics: For General Contractors, we develop 4D phasing animations to demonstrate site logistics and win competitive bids. From custom builds in Belle Meade to commercial developments in The Gulch and Brentwood, we provide the technical expertise and visual tools necessary to maximize your project’s potential. Core Services: • Commercial Building Design & Site Planning • City Permitting & Code Compliance • 3D Architectural Renderings (Exterior/Interior) • Virtual Tours & Leasing Marketing Kits • 4D Construction Phasing Animations
Overview

Current Top Pro

Hired 1 time

Serves Nashville, TN

Background checked

3 employees

15 years in business

Business hours

Sun8:00 am - 6:00 pmMon8:00 am - 6:00 pm

Payment methods

This pro accepts payments via Check, Credit card, PayPal, Stripe, Venmo, and Zelle.

Social media

Facebook, Instagram

Not the right fit?
See the other matching pros near you.
Integrity Residential

5.0

(31)

Great value
  • 41 hires on Thumbtack

    41 hires on Thumbtack

  • Responds in about 3 hours

    Responds in about 3 hours

$150/on-site estimate(waived if hired)

Goodman Creations

5.0

(17)

Great value
  • 17 hires on Thumbtack

    17 hires on Thumbtack

  • Responds in about 2 hours

    Responds in about 2 hours

Free on-site estimate

Services offered
Project type description
Professional services needed

Project consultation

Design drawings

Construction documents (blueprints)

Property type

Commercial

Projects and media
Projects and media
Credentials
Background Check

Stennis Lenoir